Menu
Pošaljite upit
Naslovna
Stanovi
Lokacija
Galerija
Kontakt
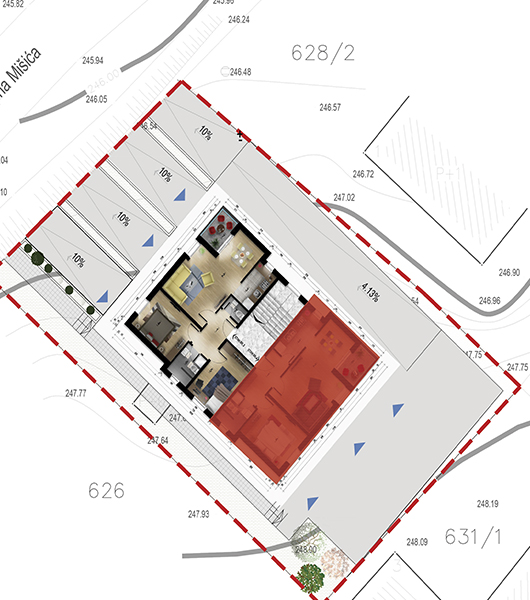
Stan 3 / PRODATO
Trosoban stan, 2. sprat
Osnova stana
Orijentacija stana
Prostorije
Preuzmi pdf
Galerija slika
Pogledaj
Dvosoban stan
64.66m
2
Penthouse
122.82m
2
Pogledaj